7階は現在募集がありません
1フロア募集区画あり
TRUST VALUE 虎ノ門 7階
物件概要
物件番号
122-00028-70物件名
TRUST VALUE 虎ノ門所在地
- 東京都港区虎ノ門1-15-7
- アクセスマップ
面積
29.73坪賃料(共益費含)
−入居日
募集終了保証金
−礼金
−更新料
−償却費
−竣工
1987年9月構造
SRC規模
地上9階/地下1階トイレ
男女別空調
個別空調エレベーター
有セキュリティ
有駐車場
無耐震
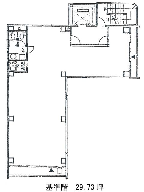
新耐震基準基準階天井高
2320mm空室延床面積
61.00坪情報更新日
2025/08/25TRUST VALUE 虎ノ門のテナント募集中区画
| 階数 | 面積 | 賃料(共益費含む) | 保証金 | 入居可能日 | 検討リスト | 詳細 |
|---|---|---|---|---|---|---|
| B1-2 | 61.00坪 | 応相談(応相談) | 515万円 | 即 |
…新着物件
アクセス
TRUST VALUE 虎ノ門の物件情報
TRUST VALUE 虎ノ門(港区虎ノ門)は虎ノ門ヒルズ駅(B4番出口)から徒歩2分の賃貸オフィスです。周辺にはコンビニや飲食店も多く、日々の利便性を備えた立地環境が魅力です。
外観はブラウン系のパネルで構成され、落ち着いた印象を与えます。地上9階建てSRC造。
基準階は約30坪とコンパクトな貸室ながら、柱は外周に配置されており、有効なレイアウトが可能な構造です。
さらに、男女別トイレが室内に設けられている点は、この規模では貴重な仕様といえます。限られたスペースの中でも快適性に配慮されており、少人数オフィスや士業・コンサル系の拠点利用にも適しています。TRUST VALUE 虎ノ門は虎ノ門ヒルズ駅(B4番出口)の他に虎ノ門駅(2a番出口)徒歩3分、霞ケ関駅(A12番出口)徒歩7分で利用も可能です。

