2階は現在募集がありません
ST渋谷ビル 2階
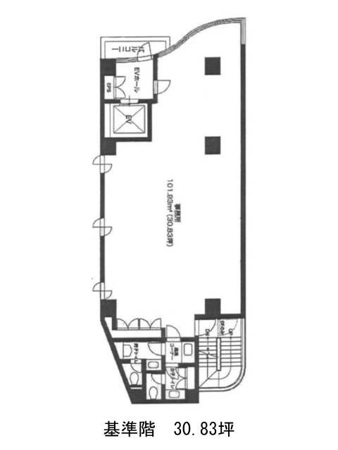
物件概要
ST渋谷ビルのテナント募集中区画
現在、空室がございません。
アクセス
ST渋谷ビルの物件情報
ST渋谷ビル(渋谷区道玄坂)は渋谷駅(西口)から徒歩3分の賃貸オフィスです。ST渋谷ビルは渋谷駅(西口)の他に神泉駅(北口)徒歩6分で利用も可能です。

