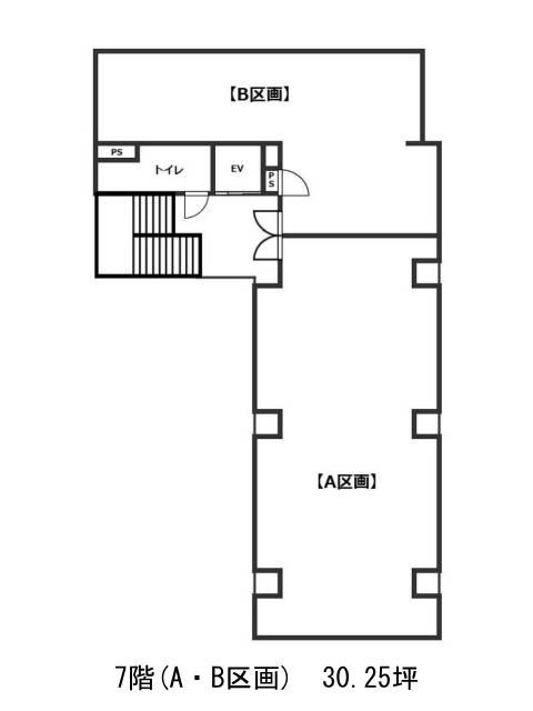
7階は現在募集がありません
中川ビル 7階
物件概要
中川ビルのテナント募集中区画
現在、空室がございません。
アクセス
中川ビルの物件情報
中川ビル(新宿区四谷)は四谷三丁目駅(2番出口)から徒歩4分の賃貸オフィスです。中川ビルは四谷三丁目駅(2番出口)の他に新宿御苑前駅(2番出口)徒歩7分、曙橋駅(A1番出口)徒歩10分で利用も可能です。

