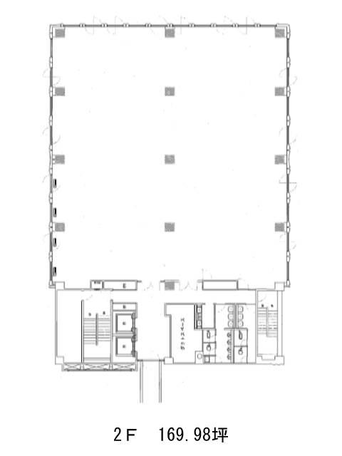
2階は現在募集がありません
全国農業共済会館 2階
物件概要
全国農業共済会館のテナント募集中区画
現在、空室がございません。
アクセス
全国農業共済会館の物件情報
全国農業共済会館(千代田区一番町)は半蔵門駅(出口1)から徒歩2分の賃貸オフィスです。1975年竣工、地上7階地下2階建てSRC造のビルです。白い外壁に大きなガラス窓が並び、すっきりとした外観をしています。二面採光で明るい室内になるでしょう。設備仕様として、駐車場・EV・セントラル空調・OAフロア・貸室外の男女別トイレが揃います。貸し会議室や宿泊施設があり、事務所を有効に使えるでしょう。2003年に改修工事が実施され、築年数を感じさせない清潔感のある建物です。清掃が行き届き、管理状態の良いビルです。全国農業共済会館は半蔵門駅(出口1)の他に麹町駅(3番出口)徒歩6分、市ヶ谷駅(A3番出口)徒歩12分で利用も可能です。

