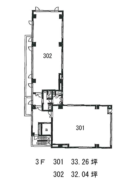
3階 301は現在募集がありません
シエルブルー麹町 3階 301
物件概要
シエルブルー麹町のテナント募集中区画
現在、空室がございません。
アクセス
シエルブルー麹町の物件情報
シエルブルー麹町(千代田区麹町)は麹町駅(3番出口)から徒歩1分の賃貸オフィスです。シエルブルー麹町は麹町駅(3番出口)の他に半蔵門駅(出口1)徒歩5分、永田町駅(9b番出口)徒歩9分で利用も可能です。

