賃貸オフィス東京.com
0120-978-512

受付時間 9:00〜19:00

お問い合わせの際は物件番号をお伝えください

島倉田町ビル 3階

外観①(メイン) {{ $buildingName }}
お電話でのお問合せ

物件番号

127-00034-83

物件名

島倉田町ビル

所在地

  • 東京都港区芝浦3-15-6

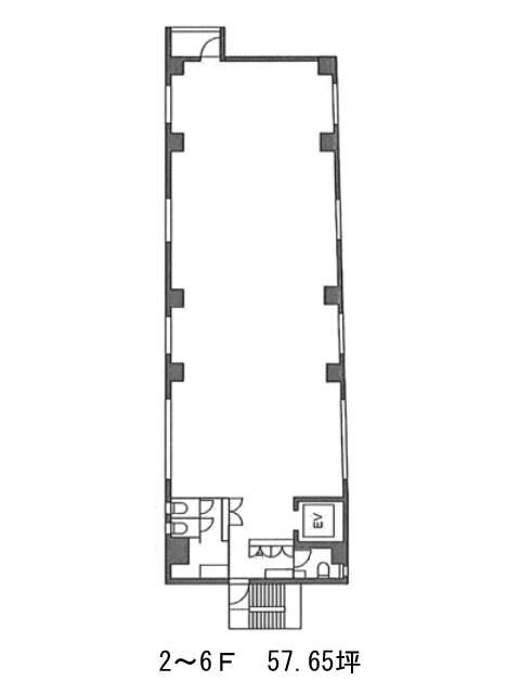
面積

57.65坪

賃料(共益費含)

月額1,239,475円
(21,500円/坪)

入居日

即

保証金

9,014,615円

礼金

1ケ月

更新料

新1ケ月

償却費

1ケ月

竣工

2022年9月

構造

RC

規模

地上6階

トイレ

男女別

空調

個別空調

エレベーター

有

セキュリティ

有

駐車場

無

耐震

新耐震基準

基準階天井高

2800mm

空室延床面積

230.60坪

最寄駅

  • 田町駅
  • 徒歩6分
  • 三田駅
  • 徒歩10分
  • 芝浦ふ頭駅
  • 徒歩14分
  • 泉岳寺駅
  • 徒歩16分

情報更新日

2025-11-27