賃貸オフィス東京.com
0120-978-512

受付時間 9:00〜19:00

お問い合わせの際は物件番号をお伝えください

テクス芝浦ビル 3階

外観①(メイン) {{ $buildingName }}
お電話でのお問合せ

物件番号

127-00049-40

物件名

テクス芝浦ビル

所在地

  • 東京都港区芝浦3-14-5

面積

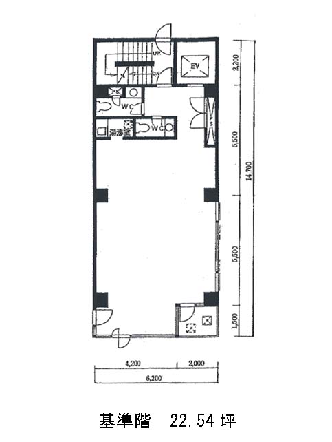
22.54坪

賃料(共益費含)

月額371,910円
(16,500円/坪)

入居日

即

保証金

1,758,120円

礼金

1ケ月

更新料

新1ケ月

償却費

なし

竣工

1991年1月

構造

RC

規模

地上6階/地下1階

トイレ

男女別

空調

個別空調

エレベーター

有

セキュリティ

有

駐車場

無

耐震

新耐震基準

基準階天井高

空室延床面積

22.54坪

最寄駅

  • 田町駅
  • 徒歩6分
  • 三田駅
  • 徒歩9分
  • 芝浦ふ頭駅
  • 徒歩14分
  • 泉岳寺駅
  • 徒歩16分

情報更新日

2026-01-15