賃貸オフィス東京.com
0120-978-512

受付時間 9:00〜19:00

お問い合わせの際は物件番号をお伝えください

赤坂榎坂ビル 4階 402

外観①(メイン) {{ $buildingName }}
お電話でのお問合せ

物件番号

133-00157-134

物件名

赤坂榎坂ビル

所在地

  • 東京都港区赤坂1-7-1

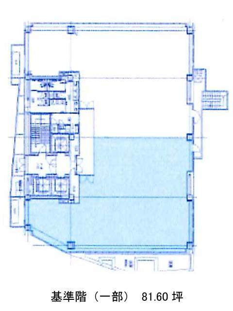
面積

81.60坪

賃料(共益費含)

−

入居日

募集終了

保証金

−

礼金

−

更新料

−

償却費

−

竣工

2009年2月

構造

SRC

規模

地上11階/地下2階

トイレ

男女別

空調

セントラル

エレベーター

有

セキュリティ

有

駐車場

有

耐震

新耐震基準

基準階天井高

2800mm

空室延床面積

−

最寄駅

  • 溜池山王駅
  • 徒歩1分
  • 六本木一丁目駅
  • 徒歩6分
  • 国会議事堂前駅
  • 徒歩7分
  • 虎ノ門ヒルズ駅
  • 徒歩8分
  • 虎ノ門駅
  • 徒歩9分

情報更新日

2025-11-07