賃貸オフィス東京.com
0120-978-512

受付時間 9:00〜19:00

お問い合わせの際は物件番号をお伝えください

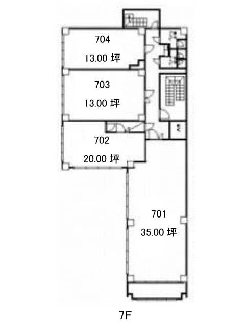
第4文成ビル 7階 701

外観①(メイン) {{ $buildingName }}
お電話でのお問合せ

物件番号

133-00312-200

物件名

第4文成ビル

所在地

  • 東京都港区赤坂7-10-9

面積

35.00坪

賃料(共益費含)

−

入居日

募集終了

保証金

−

礼金

−

更新料

−

償却費

−

竣工

1974年5月

構造

RC

規模

地上7階

トイレ

男女別

空調

個別空調

エレベーター

有

セキュリティ

有

駐車場

無

耐震

耐震補強済み

基準階天井高

2400mm

空室延床面積

55.00坪

最寄駅

  • 赤坂駅
  • 徒歩5分
  • 乃木坂駅
  • 徒歩7分
  • 六本木駅
  • 徒歩9分
  • 赤坂見附駅
  • 徒歩13分
  • 溜池山王駅
  • 徒歩13分

情報更新日

2026-04-22