賃貸オフィス東京.com
0120-978-512

受付時間 9:00〜19:00

お問い合わせの際は物件番号をお伝えください

第2猪瀬ビル 7階

外観①(メイン) {{ $buildingName }}
お電話でのお問合せ

物件番号

142-00011-50

物件名

第2猪瀬ビル

所在地

  • 東京都港区北青山2-7-20

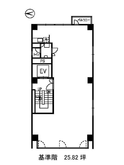
面積

25.82坪

賃料(共益費含)

−

入居日

募集終了

保証金

−

礼金

−

更新料

−

償却費

−

竣工

1974年10月

構造

SRC

規模

地上8階

トイレ

男女共用

空調

個別空調

エレベーター

有

セキュリティ

駐車場

無

耐震

旧耐震基準

基準階天井高

空室延床面積

−

最寄駅

  • 外苑前駅
  • 徒歩1分
  • 青山一丁目駅
  • 徒歩10分
  • 表参道駅
  • 徒歩11分
  • 国立競技場駅
  • 徒歩16分
  • 乃木坂駅
  • 徒歩17分

情報更新日

2025-11-28