賃貸オフィス東京.com
0120-978-512

受付時間 9:00〜19:00

お問い合わせの際は物件番号をお伝えください

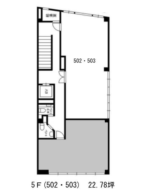
立原ビル 5階 502-503

外観①(メイン) {{ $buildingName }}
お電話でのお問合せ

物件番号

147-00376-11

物件名

立原ビル

所在地

  • 東京都港区六本木7-13-1

面積

22.78坪

賃料(共益費含)

−

入居日

募集終了

保証金

−

礼金

−

更新料

−

償却費

−

竣工

1972年1月

構造

規模

地上7階/地下1階

トイレ

男女別

空調

エレベーター

有

セキュリティ

駐車場

無

耐震

旧耐震基準

基準階天井高

空室延床面積

−

最寄駅

  • 六本木駅
  • 徒歩1分
  • 乃木坂駅
  • 徒歩6分
  • 六本木一丁目駅
  • 徒歩11分
  • 赤坂駅
  • 徒歩14分
  • 麻布十番駅
  • 徒歩14分

情報更新日

2023-05-22