賃貸オフィス東京.com
0120-978-512

受付時間 9:00〜19:00

お問い合わせの際は物件番号をお伝えください

UNパークビル 5階

外観①(メイン) {{ $buildingName }}
お電話でのお問合せ

物件番号

160-00006-30

物件名

UNパークビル

所在地

  • 東京都渋谷区恵比寿西1-19-6

面積

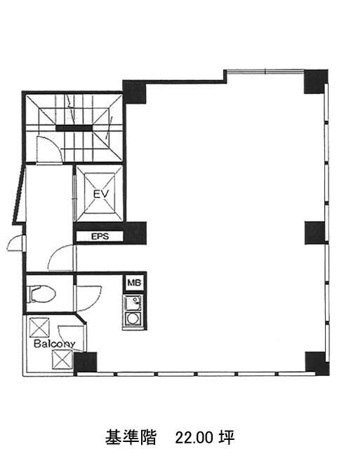
22.00坪

賃料(共益費含)

−

入居日

募集終了

保証金

−

礼金

−

更新料

−

償却費

−

竣工

1986年10月

構造

SRC

規模

地上7階

トイレ

男女共用

空調

個別空調

エレベーター

有

セキュリティ

駐車場

無

耐震

新耐震基準

基準階天井高

空室延床面積

22.00坪

最寄駅

  • 恵比寿駅
  • 徒歩2分
  • 代官山駅
  • 徒歩7分
  • 中目黒駅
  • 徒歩13分

情報更新日

2026-01-19