賃貸オフィス東京.com
0120-978-512

受付時間 9:00〜19:00

お問い合わせの際は物件番号をお伝えください

ReRaiMa渋谷道玄坂 3階

外観①(メイン) {{ $buildingName }}
お電話でのお問合せ

物件番号

181-00206-2

物件名

ReRaiMa渋谷道玄坂

所在地

  • 東京都渋谷区道玄坂1-19-12

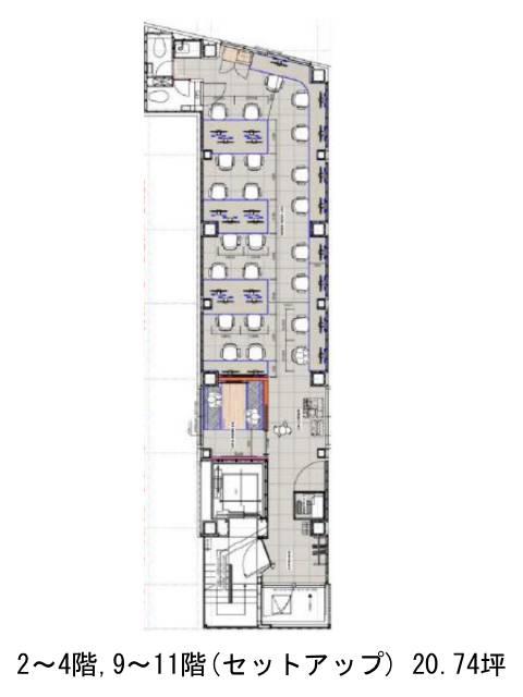
面積

20.74坪

賃料(共益費含)

月額912,558円
(44,000円/坪)

入居日

相談

保証金

2,500,000円

礼金

なし

更新料

新1ケ月

償却費

なし

竣工

2024年6月

構造

S造

規模

地上11階

トイレ

男女別

空調

個別空調

エレベーター

有

セキュリティ

有

駐車場

無

耐震

新耐震基準

基準階天井高

2670mm

空室延床面積

207.40坪

最寄駅

  • 渋谷駅
  • 徒歩4分
  • 神泉駅
  • 徒歩4分

情報更新日

2026-02-24