賃貸オフィス東京.com
0120-978-512

受付時間 9:00〜19:00

お問い合わせの際は物件番号をお伝えください

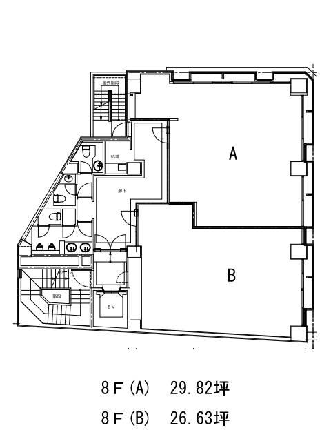
幡ヶ谷プラザビル 8階 B

外観①(メイン) {{ $buildingName }}
お電話でのお問合せ

物件番号

183-00018-72

物件名

幡ヶ谷プラザビル

所在地

  • 東京都渋谷区幡ヶ谷1-1-1

面積

26.63坪

賃料(共益費含)

月額527,274円
(19,800円/坪)

入居日

即

保証金

3,994,500円

礼金

なし

更新料

新1ケ月

償却費

なし

竣工

1979年5月

構造

SRC

規模

地上9階/地下1階

トイレ

男女別

空調

個別空調

エレベーター

有

セキュリティ

駐車場

有

耐震

耐震補強済み

基準階天井高

2650mm

空室延床面積

53.27坪

最寄駅

  • 幡ヶ谷駅
  • 徒歩3分
  • 初台駅
  • 徒歩12分
  • 笹塚駅
  • 徒歩14分
  • 代々木上原駅
  • 徒歩15分

情報更新日

2026-02-19