賃貸オフィス東京.com
0120-978-512

受付時間 9:00〜19:00

お問い合わせの際は物件番号をお伝えください

ダブル・リーブス半蔵門 2階

外観①(メイン) {{ $buildingName }}
お電話でのお問合せ

物件番号

388-00288-4

物件名

ダブル・リーブス半蔵門

所在地

  • 東京都千代田区麹町2-2-16

面積

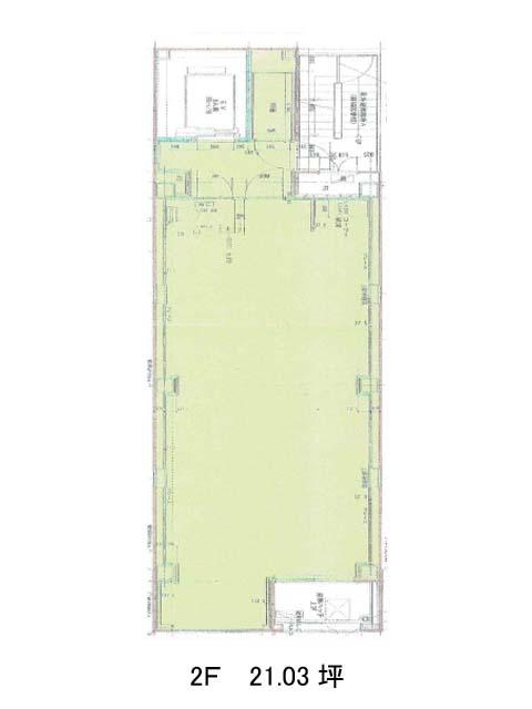
21.03坪

賃料(共益費含)

−

入居日

募集終了

保証金

−

礼金

−

更新料

−

償却費

−

竣工

2016年3月

構造

S造

規模

地上10階/地下1階

トイレ

男女共用

空調

エレベーター

有

セキュリティ

駐車場

無

耐震

新耐震基準

基準階天井高

空室延床面積

−

最寄駅

  • 半蔵門駅
  • 徒歩1分
  • 麹町駅
  • 徒歩5分
  • 永田町駅
  • 徒歩10分
  • 四ツ谷駅
  • 徒歩13分
  • 市ヶ谷駅
  • 徒歩14分

情報更新日

2023-09-20