賃貸オフィス東京.com
0120-978-512

受付時間 9:00〜19:00

お問い合わせの際は物件番号をお伝えください

ニューイワサキビル 7階

外観①(メイン) {{ $buildingName }}
お電話でのお問合せ

物件番号

397-00013-60

物件名

ニューイワサキビル

所在地

  • 東京都千代田区神田佐久間町4-14

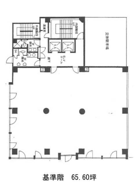
面積

65.60坪

賃料(共益費含)

−

入居日

募集終了

保証金

−

礼金

−

更新料

−

償却費

−

竣工

1988年2月

構造

RC

規模

地上9階

トイレ

男女別

空調

個別空調

エレベーター

有

セキュリティ

有

駐車場

有

耐震

新耐震基準

基準階天井高

空室延床面積

34.74坪

最寄駅

  • 浅草橋駅
  • 徒歩5分
  • 秋葉原駅
  • 徒歩6分
  • 岩本町駅
  • 徒歩8分
  • 馬喰町駅
  • 徒歩8分
  • 馬喰横山駅
  • 徒歩10分

情報更新日

2026-03-05