賃貸オフィス東京.com
0120-978-512

受付時間 9:00〜19:00

お問い合わせの際は物件番号をお伝えください

愛三ビル 3階

外観①(メイン) {{ $buildingName }}
お電話でのお問合せ

物件番号

429-00006-102

物件名

愛三ビル

所在地

  • 東京都千代田区平河町1-9-3

面積

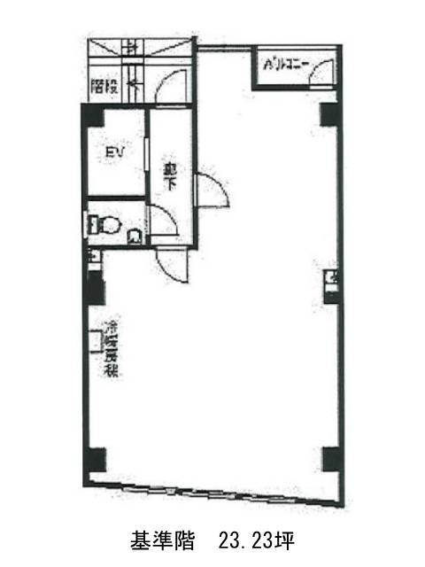
23.23坪

賃料(共益費含)

月額286,000円
(12,312円/坪)

入居日

即

保証金

1,560,080円

礼金

なし

更新料

新1ケ月

償却費

1ケ月

竣工

1975年7月

構造

SRC

規模

地上8階

トイレ

男女共用

空調

個別空調

エレベーター

有

セキュリティ

駐車場

無

耐震

旧耐震基準

基準階天井高

空室延床面積

46.46坪

最寄駅

  • 半蔵門駅
  • 徒歩4分
  • 永田町駅
  • 徒歩6分
  • 麹町駅
  • 徒歩7分
  • 赤坂見附駅
  • 徒歩11分
  • 国会議事堂前駅
  • 徒歩13分

情報更新日

2026-03-31