賃貸オフィス東京.com
0120-978-512

受付時間 9:00〜19:00

お問い合わせの際は物件番号をお伝えください

鈴梅第1ビル 5階

外観①(メイン) {{ $buildingName }}
お電話でのお問合せ

物件番号

560-00136-22

物件名

鈴梅第1ビル

所在地

  • 東京都台東区蔵前3-12-9

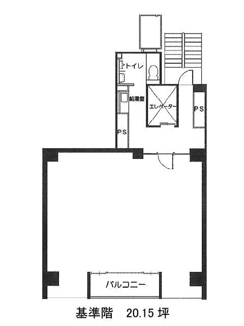
面積

20.15坪

賃料(共益費含)

−

入居日

募集終了

保証金

−

礼金

−

更新料

−

償却費

−

竣工

1981年9月

構造

RC

規模

地上9階

トイレ

男女共用

空調

個別空調

エレベーター

有

セキュリティ

駐車場

無

耐震

旧耐震基準

基準階天井高

空室延床面積

−

最寄駅

  • 蔵前駅
  • 徒歩2分
  • 浅草駅
  • 徒歩8分
  • 田原町駅
  • 徒歩10分
  • 浅草橋駅
  • 徒歩11分
  • 新御徒町駅
  • 徒歩13分

情報更新日

2025-04-10