賃貸オフィス東京.com
0120-978-512

受付時間 9:00〜19:00

お問い合わせの際は物件番号をお伝えください

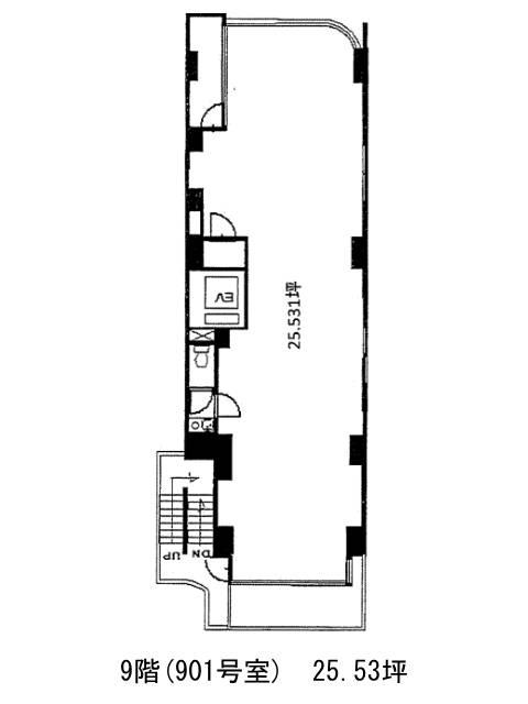
NSビル 9階

外観①(メイン) {{ $buildingName }}
お電話でのお問合せ

物件番号

578-00033-61

物件名

NSビル

所在地

  • 東京都大田区蒲田5-33-6

面積

25.53坪

賃料(共益費含)

−

入居日

募集終了

保証金

−

礼金

−

更新料

−

償却費

−

竣工

1989年5月

構造

SRC

規模

地上9階

トイレ

男女共用

空調

個別空調

エレベーター

有

セキュリティ

駐車場

無

耐震

新耐震基準

基準階天井高

空室延床面積

−

最寄駅

  • 蒲田駅
  • 徒歩7分
  • 京急蒲田駅
  • 徒歩8分

情報更新日

2025-05-15