賃貸オフィス東京.com
0120-978-512

受付時間 9:00〜19:00

お問い合わせの際は物件番号をお伝えください

日本産業ビル 3階

外観①(メイン) {{ $buildingName }}
お電話でのお問合せ

物件番号

635-00008-20

物件名

日本産業ビル

所在地

  • 東京都中央区月島4-4-4

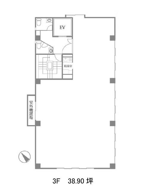
面積

38.90坪

賃料(共益費含)

−

入居日

募集終了

保証金

−

礼金

−

更新料

−

償却費

−

竣工

1989年1月

構造

SRC

規模

地上5階/地下1階

トイレ

男女別

空調

個別空調

エレベーター

有

セキュリティ

駐車場

無

耐震

新耐震基準

基準階天井高

空室延床面積

−

最寄駅

  • 月島駅
  • 徒歩4分
  • 勝どき駅
  • 徒歩11分

情報更新日

2025-06-27