賃貸オフィス東京.com
0120-978-512

受付時間 9:00〜19:00

お問い合わせの際は物件番号をお伝えください

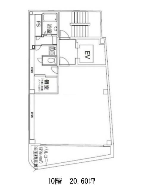
Nビル 10階

外観①(メイン) {{ $buildingName }}
お電話でのお問合せ

物件番号

642-00023-81

物件名

Nビル

所在地

  • 東京都中央区東日本橋2-28-3

面積

20.60坪

賃料(共益費含)

−

入居日

募集終了

保証金

−

礼金

−

更新料

−

償却費

−

竣工

1987年8月

構造

S造

規模

地上10階

トイレ

男女共用

空調

個別空調

エレベーター

有

セキュリティ

有

駐車場

有

耐震

新耐震基準

基準階天井高

空室延床面積

22.04坪

最寄駅

  • 馬喰町駅
  • 徒歩5分
  • 浅草橋駅
  • 徒歩5分
  • 東日本橋駅
  • 徒歩6分
  • 両国駅
  • 徒歩7分
  • 馬喰横山駅
  • 徒歩7分

情報更新日

2026-01-19