賃貸オフィス東京.com
0120-978-512

受付時間 9:00〜19:00

お問い合わせの際は物件番号をお伝えください

日本橋蛎殻町東急ビル 2階

外観①(メイン) {{ $buildingName }}
お電話でのお問合せ

物件番号

662-00016-20

物件名

日本橋蛎殻町東急ビル

所在地

  • 東京都中央区日本橋蛎殻町1-29-4

面積

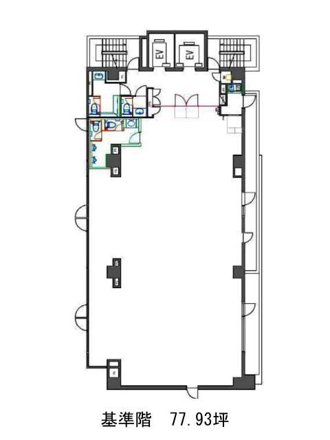
77.93坪

賃料(共益費含)

月額1,714,460円
(22,000円/坪)

入居日

即

保証金

9,351,600円

礼金

1ケ月

更新料

新1ケ月

償却費

なし

竣工

1988年12月

構造

SRC

規模

地上10階/地下1階

トイレ

男女別

空調

個別空調

エレベーター

有

セキュリティ

有

駐車場

無

耐震

新耐震基準

基準階天井高

2400mm

空室延床面積

311.72坪

最寄駅

  • 水天宮前駅
  • 徒歩1分
  • 人形町駅
  • 徒歩4分
  • 茅場町駅
  • 徒歩6分
  • 日本橋駅
  • 徒歩11分
  • 浜町駅
  • 徒歩11分

情報更新日

2026-04-02