賃貸オフィス東京.com
0120-978-512

受付時間 9:00〜19:00

お問い合わせの際は物件番号をお伝えください

シウダ・ソル 2階 201

外観①(メイン) {{ $buildingName }}
お電話でのお問合せ

物件番号

681-00099-1

物件名

シウダ・ソル

所在地

  • 東京都中野区中央4-60-10

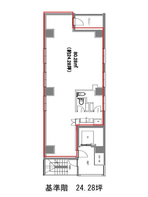
面積

24.28坪

賃料(共益費含)

−

入居日

募集終了

保証金

−

礼金

−

更新料

−

償却費

−

竣工

2022年2月

構造

RC

規模

地上7階

トイレ

男女共用

空調

エレベーター

有

セキュリティ

駐車場

有

耐震

新耐震基準

基準階天井高

空室延床面積

39.26坪

最寄駅

  • 中野駅
  • 徒歩6分
  • 新中野駅
  • 徒歩9分

情報更新日

2025-10-29