賃貸オフィス東京.com
0120-978-512

受付時間 9:00〜19:00

お問い合わせの際は物件番号をお伝えください

中村屋ビル 4階

外観①(メイン) {{ $buildingName }}
お電話でのお問合せ

物件番号

754-00170-30

物件名

中村屋ビル

所在地

  • 東京都品川区西五反田8-1-8

面積

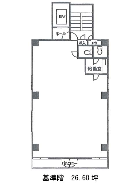
26.60坪

賃料(共益費含)

月額385,000円
(14,473円/坪)

入居日

相談

保証金

1,800,000円

礼金

なし

更新料

新1ケ月

償却費

20%

竣工

1981年1月

構造

SRC

規模

地上12階

トイレ

男女別

空調

個別空調

エレベーター

有

セキュリティ

駐車場

無

耐震

旧耐震基準

基準階天井高

空室延床面積

26.60坪

最寄駅

  • 大崎広小路駅
  • 徒歩3分
  • 五反田駅
  • 徒歩5分
  • 大崎駅
  • 徒歩10分
  • 不動前駅
  • 徒歩12分
  • 戸越駅
  • 徒歩14分

情報更新日

2026-05-21