賃貸オフィス東京.com
0120-978-512

受付時間 9:00〜19:00

お問い合わせの際は物件番号をお伝えください

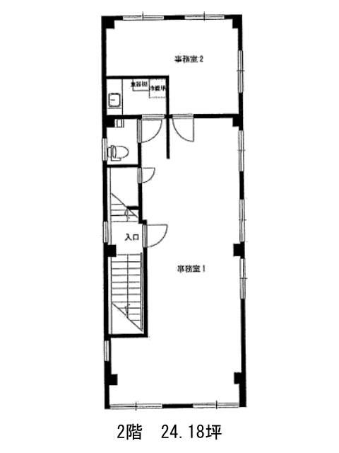
窪町CKビル 2階

外観①(メイン) {{ $buildingName }}
お電話でのお問合せ

物件番号

785-00107-1

物件名

窪町CKビル

所在地

  • 東京都文京区大塚3-5-2

面積

24.18坪

賃料(共益費含)

−

入居日

募集終了

保証金

−

礼金

−

更新料

−

償却費

−

竣工

1968年

構造

RC

規模

地上4階

トイレ

男女共用

空調

エレベーター

無

セキュリティ

駐車場

無

耐震

旧耐震基準

基準階天井高

空室延床面積

−

最寄駅

  • 茗荷谷駅
  • 徒歩5分
  • 護国寺駅
  • 徒歩11分
  • 新大塚駅
  • 徒歩11分

情報更新日

2025-11-05