賃貸オフィス東京.com
0120-978-512

受付時間 9:00〜19:00

お問い合わせの際は物件番号をお伝えください

JU KINSHICHO NORTH TOWER 6階

外観①(メイン) {{ $buildingName }}
お電話でのお問合せ

物件番号

844-00001-30

物件名

JU KINSHICHO NORTH TOWER

所在地

  • 東京都墨田区横川3-7-10

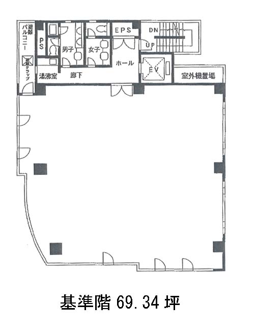
面積

69.34坪

賃料(共益費含)

−

入居日

募集終了

保証金

−

礼金

−

更新料

−

償却費

−

竣工

1993年4月

構造

SRC

規模

地上9階

トイレ

男女別

空調

個別空調

エレベーター

有

セキュリティ

駐車場

有

耐震

新耐震基準

基準階天井高

2600mm

空室延床面積

63.73坪

最寄駅

  • 押上駅
  • 徒歩7分
  • 錦糸町駅
  • 徒歩8分
  • とうきょうスカイツリー駅
  • 徒歩15分

情報更新日

2026-05-13