賃貸オフィス東京.com
0120-978-512

受付時間 9:00〜19:00

お問い合わせの際は物件番号をお伝えください

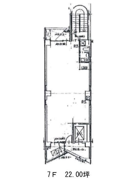
フジビル 7階

外観①(メイン) {{ $buildingName }}
お電話でのお問合せ

物件番号

875-00004-20

物件名

フジビル

所在地

  • 東京都目黒区上目黒3-2-2

面積

22.00坪

賃料(共益費含)

−

入居日

募集終了

保証金

−

礼金

−

更新料

−

償却費

−

竣工

1989年

構造

規模

地上8階

トイレ

男女共用

空調

エレベーター

有

セキュリティ

駐車場

無

耐震

新耐震基準

基準階天井高

空室延床面積

−

最寄駅

  • 中目黒駅
  • 徒歩2分
  • 代官山駅
  • 徒歩10分
  • 恵比寿駅
  • 徒歩13分

情報更新日

2023-06-01