5階は現在募集がありません
東陽町スクウェアビル 5階
物件概要
東陽町スクウェアビルのテナント募集中区画
現在、空室がございません。
アクセス
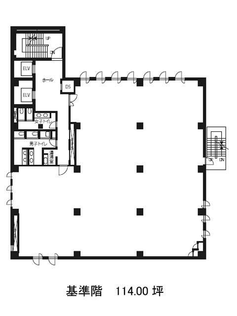
東陽町スクウェアビルの物件情報
東陽町スクウェアビル(江東区南砂)は東陽町駅(3番出口)から徒歩4分の賃貸オフィスです。東陽町スクウェアビルは東陽町駅(3番出口)の他に南砂町駅(1番出口)徒歩10分で利用も可能です。

