7階は現在募集がありません

東陽町スクウェアビル 7階

前の写真 次の写真

物件概要

物件番号

106-00008-80

物件名

東陽町スクウェアビル

所在地

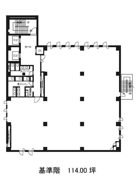
面積

114.00坪

賃料(共益費含)


入居日

募集終了

保証金

礼金

更新料

償却費

竣工

1974年9月

構造

RC

規模

地上8階

トイレ

男女別

空調

個別空調

エレベーター

セキュリティ

駐車場

耐震

旧耐震基準

基準階天井高

2490mm

空室延床面積

最寄駅

情報更新日

2024/12/17

東陽町スクウェアビルのテナント募集中区画

現在、空室がございません。

アクセス

東陽町スクウェアビルの物件情報

東陽町スクウェアビル(江東区南砂)は東陽町駅(3番出口)から徒歩4分の賃貸オフィスです。
東陽町スクウェアビルは東陽町駅(3番出口)の他に南砂町駅(1番出口)徒歩10分で利用も可能です。

近隣のエリア・駅から探す