5階は現在募集がありません
港南パークビル 5階
物件概要
港南パークビルのテナント募集中区画
現在、空室がございません。
アクセス
港南パークビルの物件情報
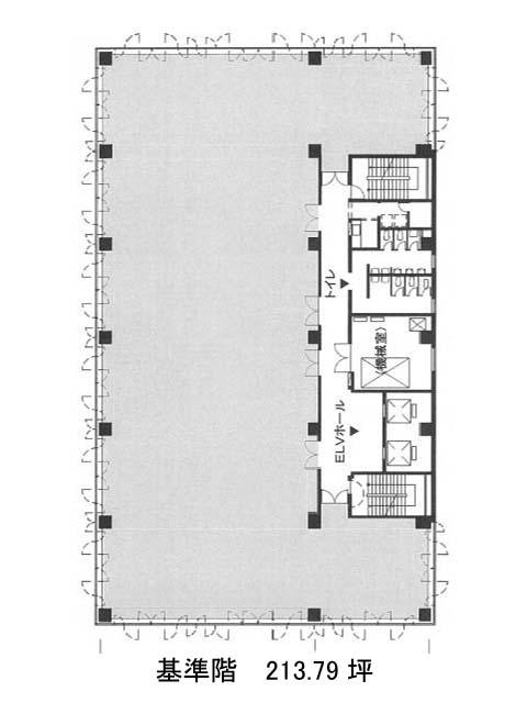
港南パークビル(港区港南)は品川駅(港南口)から徒歩10分の賃貸オフィスです。1985年竣工、地上7階建S造のビルです。新耐震基準を満たしています。長方形のフロアは1箇所に水まわり等の共用部が集まり、貸室を有効利用できるでしょう。室内に支柱がとび出ていないすっきりした間取りです。設備仕様として、EV・駐車場・セントラル空調・OAフロア・貸室外の男女別トイレ・非常階段2箇所があります。二面採光で明るい室内になるでしょう。運河の向こう岸に香南公園があり、ひらけた眺望をお楽しみ頂けます。港南パークビルは品川駅(港南口)の他に北品川駅(出口)徒歩12分、天王洲アイル駅(中央口)徒歩12分で利用も可能です。

