7階は現在募集がありません
品川KSビル 7階
物件概要
品川KSビルのテナント募集中区画
現在、空室がございません。
アクセス
品川KSビルの物件情報
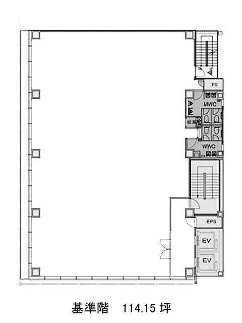
品川KSビル(港区港南)は品川駅(港南口)から徒歩4分の賃貸オフィスです。S造地上14階地下1階建、2009年3月竣工のビルです。白い外壁と大きなガラス窓で明るい外観をしています。敷地内には植栽も多く、生い茂る緑が周囲への癒しとなるでしょう。室内は無柱空間の整形で、オフィス家具の配置がしやすいでしょう。EV5基・駐車場・機械警備・個別空調・非常階段2箇所・貸室外の男女別トイレ・OAフロアといった充実の設備仕様をしています。周辺はオフィスビルが多く、電柱が地中化されて歩きやすいエリアです。

