4階は現在募集がありません
スペースインMA 4階
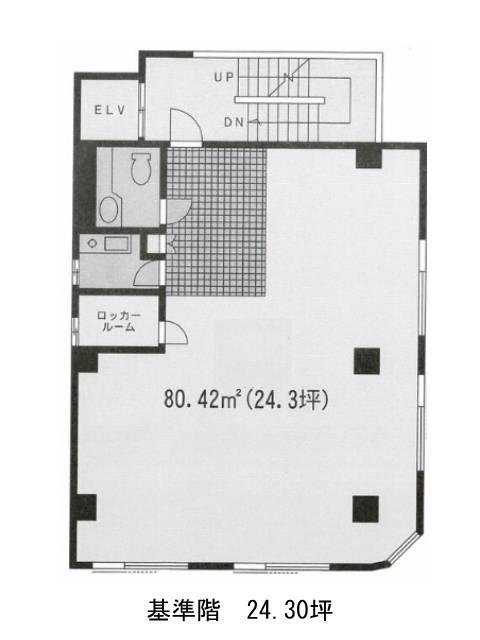
物件概要
スペースインMAのテナント募集中区画
現在、空室がございません。
アクセス
スペースインMAの物件情報
スペースインMA(港区南麻布)は麻布十番駅(1番出口)から徒歩8分の賃貸オフィスです。スペースインMAは麻布十番駅(1番出口)の他に白金高輪駅(4番出口)徒歩12分で利用も可能です。

