8階は現在募集がありません
宇田川町ビルディング 8階
物件概要
宇田川町ビルディングのテナント募集中区画
現在、空室がございません。
アクセス
宇田川町ビルディングの物件情報
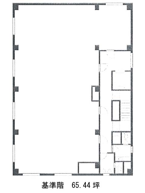
宇田川町ビルディング(渋谷区宇田川町)は渋谷駅(A2番出口)から徒歩6分の賃貸オフィスです。1970年竣工、地上9階地下1階建SRC造のビルです。角地に建ち、視認性が高いでしょう。外壁はブラウンで重厚感のある外観をしています。基準階面積は65.44坪。長方形のオフィスは支柱が中央に無く、家具レイアウトのしやすい形をしています。EV・機械警備・個別空調・駐車場・貸室外の男女別トイレといった設備仕様をしています。他フロアと共有の駐車場は2台分が無料です。オフィスへの出入口が複数あり動線の確保がしやすいでしょう。宇田川町ビルディングは渋谷駅(A2番出口)の他に神泉駅(北口)徒歩12分、代々木公園駅(2番出口)徒歩13分で利用も可能です。

