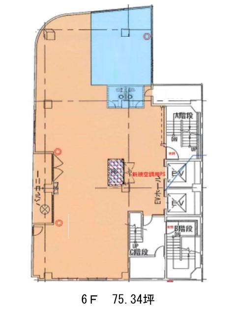
6階は現在募集がありません
ゼンモール渋谷ビル 6階
物件概要
ゼンモール渋谷ビルのテナント募集中区画
現在、空室がございません。
アクセス
ゼンモール渋谷ビルの物件情報
ゼンモール渋谷ビル(渋谷区宇田川町)は渋谷駅(A2番出口)から徒歩3分の賃貸オフィスです。ゼンモール渋谷ビルは渋谷駅(A2番出口)の他に神泉駅(北口)徒歩10分で利用も可能です。

