2階は現在募集がありません
プロトビル 2階
物件概要
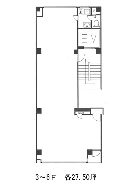
プロトビルのテナント募集中区画
現在、空室がございません。
アクセス
プロトビルの物件情報
プロトビル(渋谷区宇田川町)は渋谷駅(A2番出口)から徒歩6分の賃貸オフィスです。プロトビルは渋谷駅(A2番出口)の他に神泉駅(北口)徒歩11分、代々木公園駅(2番出口)徒歩13分で利用も可能です。

