3階は現在募集がありません
キングビル 3階
物件概要
キングビルのテナント募集中区画
現在、空室がございません。
アクセス
キングビルの物件情報
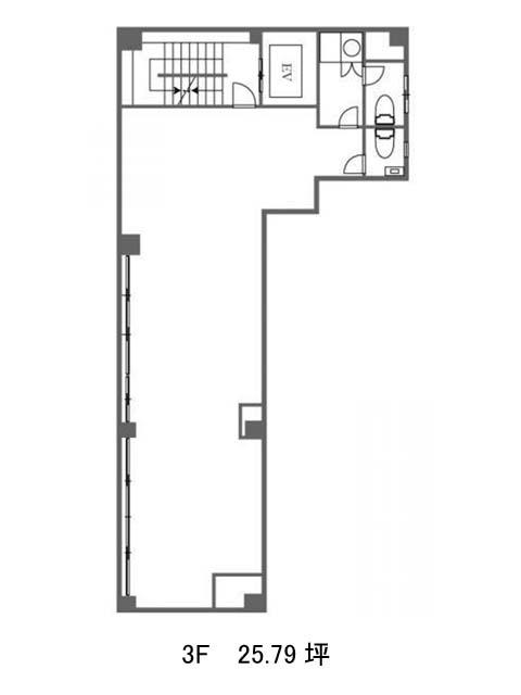
キングビル(渋谷区円山町)は神泉駅(北口)から徒歩3分の賃貸オフィスです。道玄坂通り沿いにある、地上10階・地下1階建てのビルです。1階にあるフグ料理店の、大きなフグの飾りが目印です。基準階は30.34坪のL字型の間取りで、無柱空間でレイアウトしやすくなっています。室内に給湯室とトイレが設置されています。道沿いに109など東急系の大型店舗・施設を中心に飲食店や雑居ビル、映画館などが多く立ち並んでいますが、通りの道幅が広いので、雑然とした雰囲気はありません。キングビルは神泉駅(北口)の他に渋谷駅(西口)徒歩6分、駒場東大前駅(東口)徒歩15分で利用も可能です。

