4階は現在募集がありません
大崎ビル/TRANS-SHIBUYA 4階
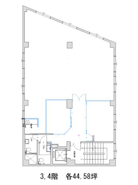
物件概要
大崎ビル/TRANS-SHIBUYAのテナント募集中区画
現在、空室がございません。
アクセス
大崎ビル/TRANS-SHIBUYAの物件情報
大崎ビル/TRANS-SHIBUYA(渋谷区渋谷)は渋谷駅(新南口)から徒歩1分の賃貸オフィスです。

