6階は現在募集がありません
渋谷サウスビル 6階
物件概要
渋谷サウスビルのテナント募集中区画
現在、空室がございません。
アクセス
渋谷サウスビルの物件情報
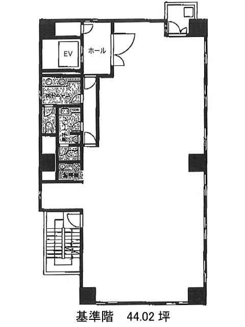
渋谷サウスビル(渋谷区渋谷)は渋谷駅(31番出口)から徒歩3分の賃貸オフィスです。JR渋谷駅新南口からすぐの、11階建てのビルです。2015年11月竣工の築浅のビルです。ベージュ色の外壁の清潔感のある外観です。基準階は44坪ほどの長方形の間取りです。室内に給湯室と男女別トイレが設置されています。床がフリーアクセスになっているので、レイアウトの自由度が高いです。光ケーブルが設置済みです。渋谷エリアは全体的に再開発が進み、2020年前後に大きく街が進化する予定です。渋谷の顔と言えば、センター街やハチ公広場側が頭に浮かぶ方が多いと思いますが、現在、南側も再開発が進み、渋谷川が整備され大きな施設が建設中です。当物件はその再開発エリアのすぐ側に建っています。渋谷サウスビルは渋谷駅(31番出口)の他に神泉駅(北口)徒歩15分で利用も可能です。

