4階は現在募集がありません
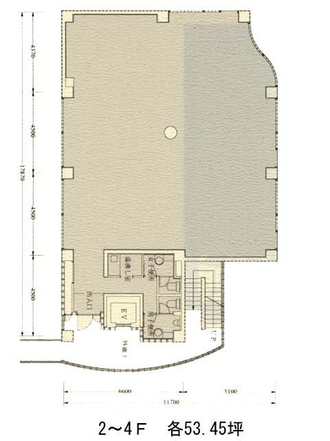
塩入小路Ⅱビル 4階
物件概要
塩入小路Ⅱビルのテナント募集中区画
現在、空室がございません。
アクセス
塩入小路Ⅱビルの物件情報
塩入小路Ⅱビル(渋谷区神泉町)は神泉駅(西口)から徒歩1分の賃貸オフィスです。塩入小路Ⅱビルは神泉駅(西口)の他に渋谷駅(西口)徒歩8分、駒場東大前駅(東口)徒歩12分で利用も可能です。

