第1暁ビルのテナント募集中区画
| 階数 | 面積 | 賃料(共益費含む) | 保証金 | 入居可能日 | 検討リスト | 詳細 |
|---|---|---|---|---|---|---|
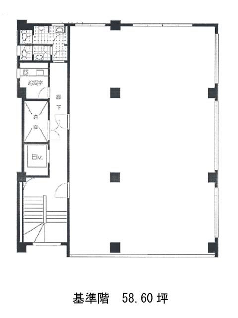
| 9 | 58.60坪 | 1,678,380円/月(28,641円/坪) | 810万円 | 即 | ||
| 10 | 24.14坪 | 550,000円/月(22,784円/坪) | 300万円 | 即 |
…新着物件
アクセス
第1暁ビルの物件情報
第1暁ビル(渋谷区道玄坂)は神泉駅(北口)から徒歩4分の賃貸オフィスです。道玄坂の中心部、視認性の高い角地に立地する当ビルは、地上11階・地下1階建ての賃貸オフィス物件です。渋谷マークシティの至近に位置し、周囲には多様な飲食店やカフェ、郵便局などが点在しており、ビジネスシーンをサポートする利便性の高い環境が整っています。
基準階は約58〜64坪の整形区画で、柱の少ない設計により、レイアウトの自由度が高く、業種や人数規模を問わず柔軟なオフィス設計が可能です。一部フロアでは24坪程度の分割貸しにも対応しており、スタートアップから中規模企業まで幅広いニーズに応えられる点も魅力です。
設備面では、個別空調・OAフロア・光ファイバー対応・男女別トイレ(共用部)を完備し、24時間の利用にも対応。エレベーターは1基設置され、機械警備によるセキュリティも整っています。
外観は御影石張りの重厚感あるデザインで、エントランスも奥行きのある造りとなっており、来訪者に落ち着いた印象を与えます。道玄坂エリアで、利便性と機能性を兼ね備えたオフィスをお探しの企業に適した物件です。第1暁ビルは神泉駅(北口)の他に渋谷駅(西口)徒歩5分で利用も可能です。

