4階は現在募集がありません
AD-O渋谷道玄坂 4階
物件概要
AD-O渋谷道玄坂のテナント募集中区画
現在、空室がございません。
アクセス
AD-O渋谷道玄坂の物件情報
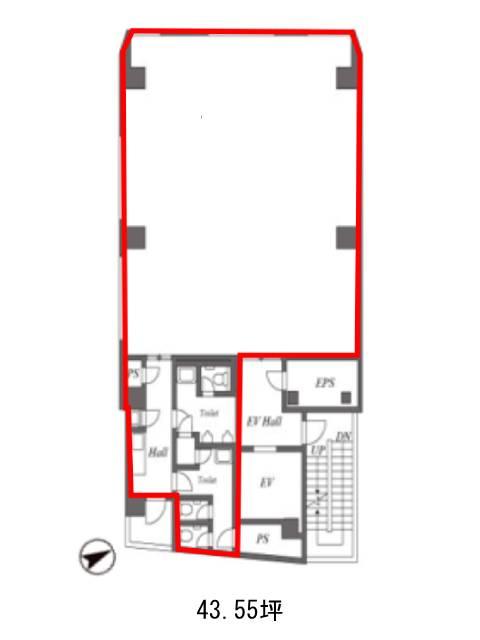
AD-O渋谷道玄坂(渋谷区道玄坂)は神泉駅(北口)から徒歩4分の賃貸オフィスです。2017年竣工の築浅物件です。地上11階建てのスリムな建物を木調の立体的なパネルで覆った外観はグッドデザイン賞の受賞歴もある視認性の高い物件です。エントランスや貸室周りの内装においても、木調と白の組み合わせが明るく居心地の良い空間を演出しています。貸室内は無柱の整形オフィスです。共用部が端にまとまった無駄のない間取りで、グリッド天井も設置されているためレイアウト効率が良いでしょう。設備面はエレベーター1基、個別空調、OAフロア等を完備し、セキュリティには機械警備を導入しています。道玄坂上交差点の近くに建ち、周辺にはコンビニや飲食店が複数営業していますので、食事などには困らないでしょう。AD-O渋谷道玄坂は神泉駅(北口)の他に渋谷駅(西口)徒歩5分で利用も可能です。

