4階は現在募集がありません
矢貝ビル 4階
物件概要
物件番号
540-00028-20物件名
矢貝ビル所在地
- 東京都台東区花川戸1-10-11
- アクセスマップ
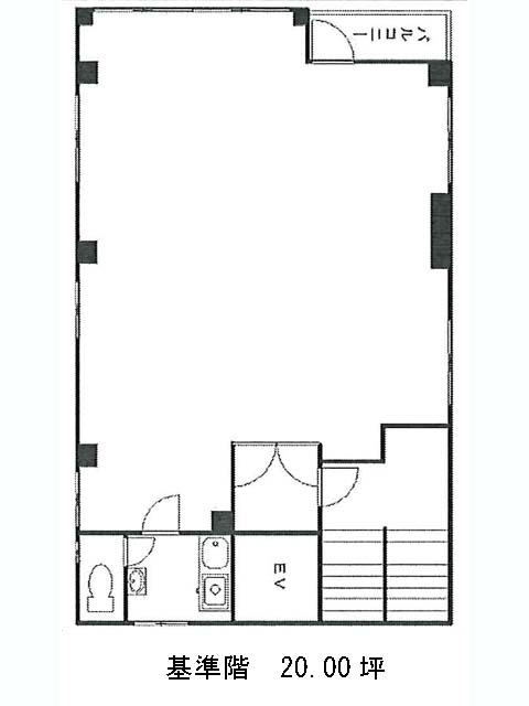
面積
20.00坪賃料(共益費含)
−入居日
募集終了保証金
−礼金
−更新料
−償却費
−竣工
1989年1月構造
S造規模
地上6階トイレ
男女共用空調
エレベーター
有セキュリティ
駐車場
無耐震
新耐震基準基準階天井高
空室延床面積
−最寄駅
- 浅草駅
- 徒歩4分
- 本所吾妻橋駅
- 徒歩12分
- 田原町駅
- 徒歩14分
- とうきょうスカイツリー駅
- 徒歩15分
情報更新日
2023/04/19矢貝ビルのテナント募集中区画
現在、空室がございません。
アクセス
矢貝ビルの物件情報
矢貝ビル(台東区花川戸)は浅草駅(7番出口)から徒歩4分の賃貸オフィスです。矢貝ビルは浅草駅(7番出口)の他に本所吾妻橋駅(A3番出口)徒歩12分、田原町駅(3番出口)徒歩14分で利用も可能です。

