2階は現在募集がありません
ヴェルコ黒門ビルディング 2階
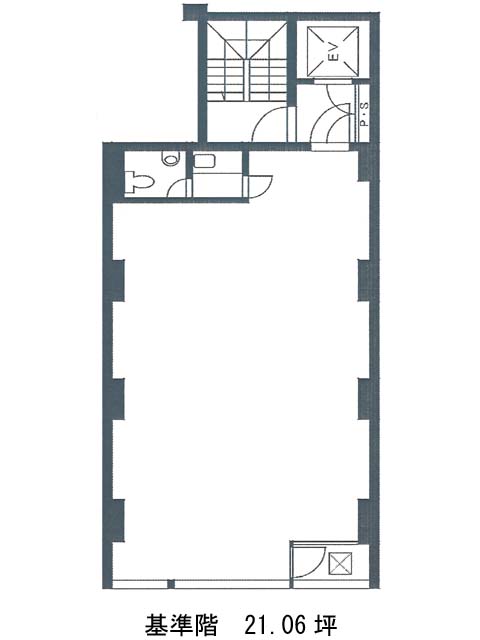
物件概要
ヴェルコ黒門ビルディングのテナント募集中区画
現在、空室がございません。
アクセス
ヴェルコ黒門ビルディングの物件情報
ヴェルコ黒門ビルディング(台東区上野)は上野広小路駅(A1番出口)から徒歩4分の賃貸オフィスです。ヴェルコ黒門ビルディングは上野広小路駅(A1番出口)の他に御徒町駅(南口)徒歩4分、上野御徒町駅(A4番出口)徒歩5分で利用も可能です。

