7階は現在募集がありません
第1下谷ビル 7階
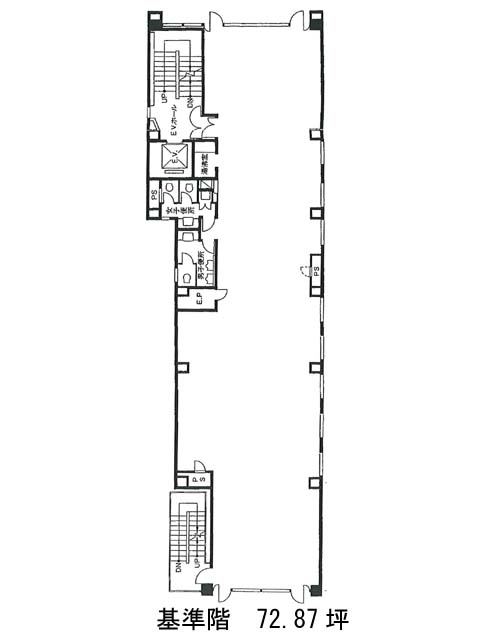
物件概要
第1下谷ビルのテナント募集中区画
現在、空室がございません。
アクセス
第1下谷ビルの物件情報
第一下谷ビル(台東区上野)は上野駅(入谷口)から徒歩3分の賃貸オフィスです。第一下谷ビルは上野駅(入谷口)の他に稲荷町駅(1番出口)徒歩8分、京成上野駅(正面口)徒歩9分で利用も可能です。

