7階は現在募集がありません
西入ビル 7階
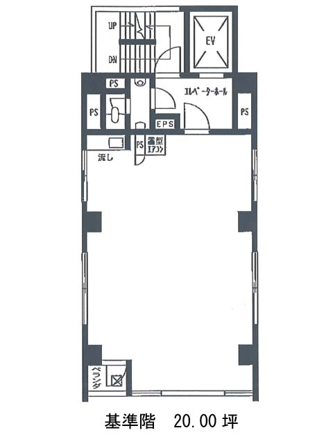
物件概要
西入ビルのテナント募集中区画
現在、空室がございません。
アクセス
西入ビルの物件情報
西入ビル(台東区上野)は上野駅(4番出口)から徒歩2分の賃貸オフィスです。西入ビルは上野駅(4番出口)の他に上野御徒町駅(A8番出口)徒歩4分、京成上野駅(正面口)徒歩5分で利用も可能です。

