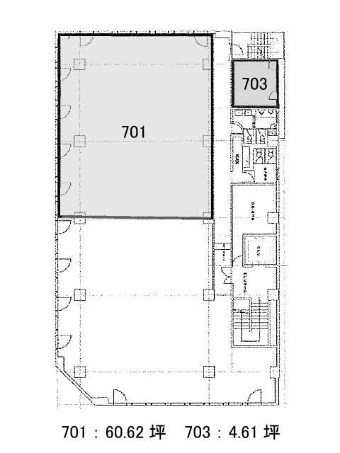
7階 701は現在募集がありません
A-RISE御徒町 7階 701
物件概要
A-RISE御徒町のテナント募集中区画
現在、空室がございません。
アクセス
A-RISE御徒町の物件情報
A-RISE御徒町(台東区上野)は仲御徒町駅(2番出口)から徒歩2分の賃貸オフィスです。A-RISE御徒町は仲御徒町駅(2番出口)の他に御徒町駅(南口)徒歩3分、上野御徒町駅(A6番出口)徒歩3分で利用も可能です。

