5階は現在募集がありません
アイセ上野ビル 5階
物件概要
アイセ上野ビルのテナント募集中区画
現在、空室がございません。
アクセス
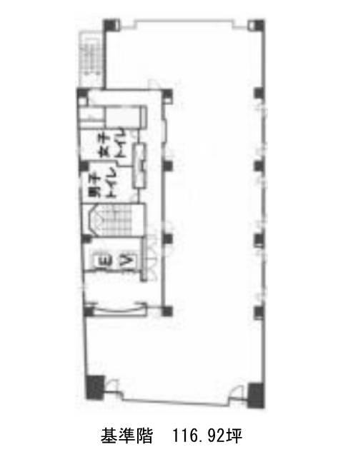
アイセ上野ビルの物件情報
アイセ上野ビル(台東区上野)は仲御徒町駅(2番出口)から徒歩3分の賃貸オフィスです。アイセ上野ビルは仲御徒町駅(2番出口)の他に御徒町駅(南口)徒歩3分、上野御徒町駅(A6番出口)徒歩3分で利用も可能です。

