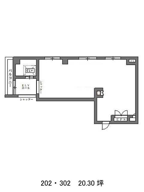
2階 202は現在募集がありません
正三ビル 2階 202
物件概要
正三ビルのテナント募集中区画
現在、空室がございません。
アクセス
正三ビルの物件情報
正三ビル(台東区上野)は上野駅(4番出口)から徒歩2分の賃貸オフィスです。正三ビルは上野駅(4番出口)の他に京成上野駅(正面口)徒歩4分、上野御徒町駅(A7番出口)徒歩5分で利用も可能です。

