1階は現在募集がありません
上野6丁目MMビル 1階
物件概要
上野6丁目MMビルのテナント募集中区画
現在、空室がございません。
アクセス
上野6丁目MMビルの物件情報
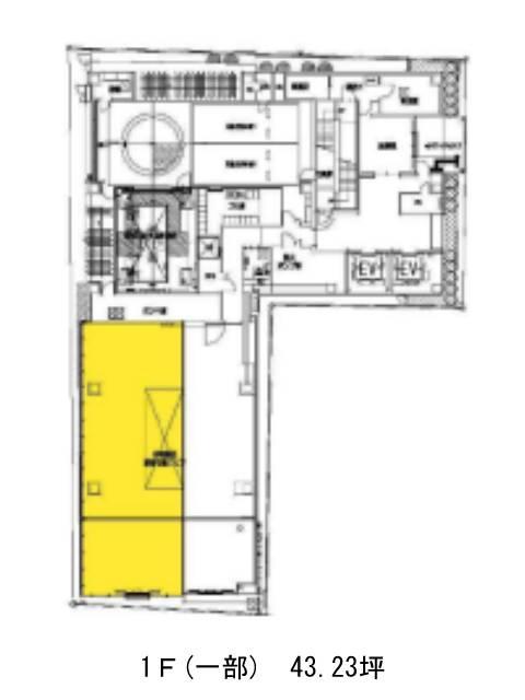
上野6丁目MMビル(台東区上野)は上野御徒町駅(A8番出口)から徒歩1分の賃貸オフィスです。2022年竣工、地上11階、地下1階建ての鉄筋コンクリート造です。新築のビルとなっており、大通り沿いに面しています。デザイン性のある外観のため、視認性が大変高いです。室内は、基準階が約137坪と広々としております。L字型の形で、無柱空間の整形オフィスですので、レイアウトしやすい空間となっております。窓はペアガラス、OAフロア、男女別トイレ、個別空調、機械警備等最新の設備を導入しています。エレベーターは2基、機械式駐車場があります。上野6丁目MMビルは上野御徒町駅(A8番出口)の他に仲御徒町駅(4番出口)徒歩2分、御徒町駅(北口)徒歩3分で利用も可能です。

