秋葉原アイマークビルのテナント募集中区画
| 階数 | 面積 | 賃料(共益費含む) | 保証金 | 入居可能日 | 検討リスト | 詳細 |
|---|---|---|---|---|---|---|
| 5 | 311.74坪 | 応相談(応相談) | 応相談 | 2026年4月上旬 | ||
| 11 | 311.85坪 | 応相談(応相談) | 応相談 | 2026年2月下旬 |
…新着物件
アクセス
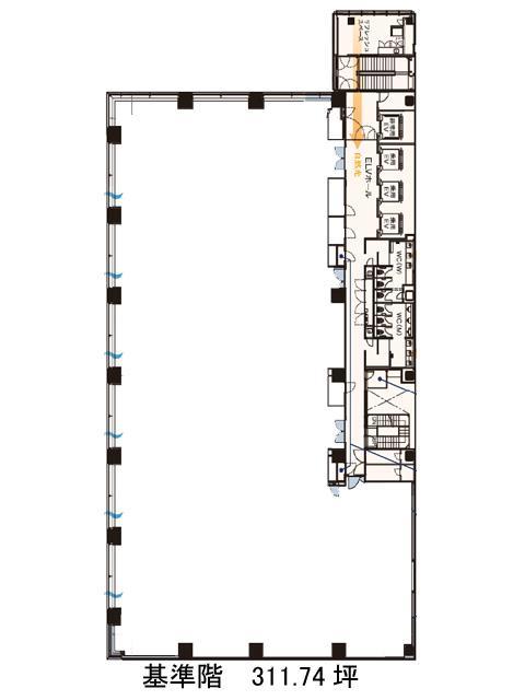
秋葉原アイマークビルの物件情報
秋葉原アイマークビル(台東区台東)は仲御徒町駅(1番出口)から徒歩5分の賃貸オフィスです。2018年竣工、地上12階建てS造のビルです。ミラーガラスが並び、スタイリッシュな外観をしています。窓面が多く、採光も十分なため、明るい室内になるでしょう。設備仕様として、EV・駐車場・空調・OAフロア・貸室外の男女別トイレがあります。貸室は長方形の無柱空間でオフィス家具のレイアウトがしやすい形をしています。天井高2800㎜で開放感があるでしょう。基準階面積は311.74坪。大型の貸室は、出入口が複数あり、来客用と動線をわけることができます。秋葉原アイマークビルは仲御徒町駅(1番出口)の他に末広町駅(1番出口)徒歩6分、秋葉原駅(2番出口)徒歩7分で利用も可能です。

